
Büro- und Gewerbebau
Neubau eines Büro- und Produktionsgebäudes, Gärtringen
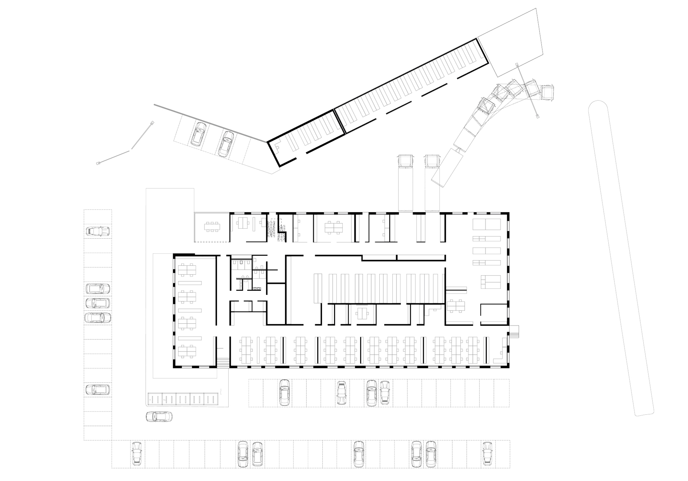
Ein repräsentativer Firmensitz, funktional und effizient. Direkt am Ortseingang von Gärtringen präsentiert sich werbewirksam der neue Firmensitz der expandierenden Firma Dr. E. Horn GmbH. Im neuen Gebäude werden Messgeräte für die weltweite Schifffahrt, Energieerzeugung und für industrielle Anwendungen produziert. Ein effizienter Produktionsablauf, kurze Wege für die Belegschaft und eine optimale Verknüpfung der unterschiedlichen Funktionsbereiche bilden die Basis des Entwurfes.
Kenndaten
Auftrag | DirektauftragBauherr | ADPART Immobilien GmbH
LPH | 1 – 7, 8 teilweise
BGF | 3.530 m²
Baukosten | 5.2 Mio. €
Fertigstellung | 2018
Team | S. Fischer, A. Kilicaslan, K. Jelen
Regionales
- Ein klares, nüchternes Gebäude für ein traditionsreiches,
schwäbisches Unternehmen.
Besonderheiten
- Kompakte Grundrisse für kurze, schnelle Wege und
einen effizienten Produktionsablauf. - Eine mittig liegende, von allen Seiten andienbare Kommission.
- Eine Gewerbearchitektur mit Identifikationskraft.
Für ein technisch affines Unternehmen darf die Architektur sich entsprechend präsentieren. Von außen fällt sofort die glänzende, gelochte und hinterlüftete Trapezblechfassade mit seinen fein ausgestalteten Details auf. Im Inneren zeigt sich das Gebäude klar und nüchtern. Sichtbetonflächen, offen geführte Lüftungsleitungen, großzügige Verglasungen und
ein anthrazitfarbener Industrieboden zeigen das Selbstverständnis eines traditionsreichen, schwäbischen Unternehmens.
ein anthrazitfarbener Industrieboden zeigen das Selbstverständnis eines traditionsreichen, schwäbischen Unternehmens.
Alle Produktionsbereiche sind im Erdgeschoss untergebracht. Für einen reibungslosen Arbeitsablauf gruppieren sich die »produzierenden und kontrollierenden Funktionen« um eine mittig liegende, von allen Seiten andienbare Kommission. In den Obergeschossen befinden sich Räumlichkeiten für Entwicklung, Kantine, Verwaltung und Vertrieb sowie die Geschäftsleitung.




