
Büro- und Gewerbebau | Holzbau
Neubau eines Verwaltungsgebäudes in Holz-Hybrid Bauweise für Kyocera Fineceramics
Für die Kyocera Fineceramics Europe GmbH wurde ein Verwaltungsgebäude in Holz-Hybridbauweise realisiert, das Büro- und Kommunikationsfunktionen in einem nachhaltigen, zukunftsfähigen Gebäudetypus zusammenführt. Ausgangspunkt war der Flächenbedarf eines international wachsenden Unternehmens sowie das Potenzial eines großzügigen Bestandsareals. Der Standort wurde als Campus neu organisiert und so strukturiert, dass bestehende Gebäude integriert und angfristige Erweiterungen ermöglicht werden. Die vollständige Neuerschließung des Areals umfasste
Infrastruktur, Verkehrsflächen und Außenanlagen. Sämtliche Neubauten wurden in Holzbauweise ausgeführt; das Verwaltungsgebäude nimmt hierbei eine exemplarische Rolle als Holz-Hybridbau ein. Das städtebauliche Konzept orientiert sich an einer campusartigen Struktur mit kurzen, direkten Wegen, die eine flexible Erweiterbarkeit ermöglichen.
Infrastruktur, Verkehrsflächen und Außenanlagen. Sämtliche Neubauten wurden in Holzbauweise ausgeführt; das Verwaltungsgebäude nimmt hierbei eine exemplarische Rolle als Holz-Hybridbau ein. Das städtebauliche Konzept orientiert sich an einer campusartigen Struktur mit kurzen, direkten Wegen, die eine flexible Erweiterbarkeit ermöglichen.
Details
Auftrag | DirektauftragBauherr | Kyocera Fineceramics Europe GmbH, Mannheim
LPH | 1 – 8
BGF | 2.300 m²
Fertigstellung | 06/2025
Team | S. Fischer, S. Solmaz, T. Kraft, J. Reinhard
Regionales
- Stärken des für Kyocera wichtigen Standortes in Mannheim.
- Ein erweiterungsfähiger Gewerbecampus aus Alt- und Neubauten.
- Regionale Planer und Handwerksbetriebe bauen an der Zukunft eines weltweit agierenden Unternehmens.
Besonderheiten
- Innovative Bauweise aus massiven Holzwänden und einer Holz-Beton-Verbund-Decke.
- Modernste Gebäudetechnik als Beitrag zur weltweit notwendigen CO2-Einsparung.
- Kompromisslos spürbare Architektur, Sichtholzflächen, Sichtbeton und sichtbare Technikleitungen.
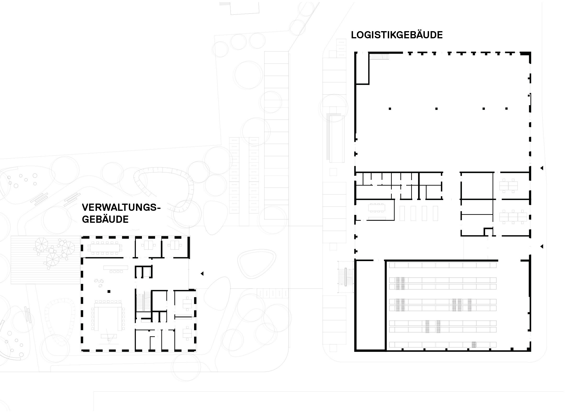
Der Neubau des Verwaltungsgebäudes bildet den organisatorischen und kommunikativen Mittelpunkt eines gewachsenen Industrieareals. Der viergeschossige, kompakte Baukörper mit nahezu quadratischem Grundriss setzt einen klar strukturierten architektonischen Akzent innerhalb des industriellen Umfelds. Das Erdgeschoss fungiert als Adresse des Unternehmens und bündelt Ankunft, Empfang und kommunikative Funktionen. In den Obergeschossen sind die Arbeitsbereiche effizient um eine zentrale Zone organisiert.Ein durchgängiges, wirtschaftlich optimiertes Ausbauraster prägt sowohl die innere Struktur als auch die Fassadengliederung und verleiht dem Gebäude eine ruhige, präzise Erscheinung. Ergänzt wird der Neubau durch neu gestaltete Außenanlagen, die versiegelte Flächen reduzieren, Retentionsbereiche integrieren und qualitätsvolle Aufenthaltsräume für Mitarbeitende schaffen. Auf diese Weise entsteht ein klar strukturiertes Ensemble, das dem Standort eine identitätsstiftende architektonische Ordnung verleiht.
Die funktionale Organisation ist kompakt um einen zentralen Erschließungskern angeordnet und ermöglicht kurze Wege zwischen Verwaltung, Logistik und Produktion. Das Erdgeschoss bildet mit Eingang, Administration und Konferenzbereichen die kommunikative Schnittstelle des Standorts, während die Büroflächen der Obergeschosse U-förmig organisiert sind und eine wirtschaftliche Flächennutzung ermöglichen. Ein durchgängiges Planungsraster sorgt für flexible Grundrisse und Anpassungsfähigkeit an zukünftige Anforderungen.Das Gebäude ist als Holz-Hybridkonstruktion ausgeführt: ein Stahlbeton-Erdgeschoss mit drei Obergeschossen aus vorgefertigten Holzelementen mit Brettstapelwänden und Holz-Beton-Verbunddecken. Sichtbare Konstruktionen, großzügige Raumhöhen und natürliche Materialien prägen die Innenräume. Die gegliederte Holzfassade mit versetzten Wandscheiben und Stahlrandträgern verleiht dem Baukörper eine ruhige Struktur. Eine Masse-Feder-Masse-Konstruktion gewährleistet trotz der leichten Bauweise einen hohen Schallschutz.
»KYOCERA Fineceramics Europe GmbH hat für ihre neue Verwaltungszentrale mit Logistik- und Produktionshalle in Mannheim-Friedrichsfeld von Konzeption bis Ausführung auf STUDIO SF vertraut. Von Anfang an stand im Fokus, das Bauprojekt nicht nur funktional und gestalterisch ansprechend zu gestalten, sondern auch die CO₂-Emissionen durch Bau und Betrieb zu minimieren. Hierzu konnte durch die innovative Gestaltung und Ausführung in Holzbautechniken ein wesentlicher Beitrag geleistet werden.STUDIO SF hat sich hierbei als kompetentes Architekturbüro erwiesen, das auch sehr flexibel auf die Anforderungen der Bauherrenschaft eingehen konnte. Der 2. Bauabschnitt für das KYOCERA Campus ist schon in der konzeptionellen Vorbereitung.«
Armin Kayser
Managing Director der KYOCERA Fineceramics Europe GmbH
Managing Director der KYOCERA Fineceramics Europe GmbH









